tanah cocok untuk perumahan daerah margaluyu margasari bandung.jpg
tanah luas margaluyu margasari bandung.jpg
tanah strategis margaluyu bandung.jpg
tanah strategis margaluyu margasari bandung.jpg
tanas luas margaluyu bandung.jpg
akses ke tanah margaluyu bandung.jpg
akses masuk tanah margaluyu bandung.jpg
area  rumah potong hewan tanah margaluyu bandung.jpg
area kandang sapi tanah margaluyu bandung.jpg
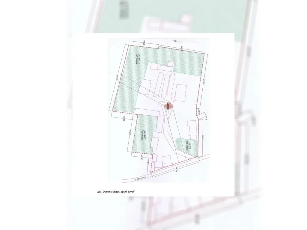
detail objek persil tanah Margaluyu.jpg
Didin Jae_akses ke tanah margaluyu bandung.jpg
gerbang tanah margaluyu bandung.jpg
tampak photo dari angkasa.jpg
Tanah  Luas dan Strategis Margaluyu bandung.jpg
Dijual Ready

36 Milyar

LOKASI:

MARGASARI, BUAHBATU, KOTA BANDUNG

Informasi Properti
  • No. Listing: 02.2.06.23.3736
  • Kategori: Tanah
  • Jenis: Secondary
  • Dilihat: 2523 kali
Deskripsi

Dijual Tanah daratan Sayap Margacinta Kota Bandung

SPESIFIKASI :

Tanah seluas 13.669 m2 ( 1.37 Ha ) cocok untuk perumahan dengan lebar muka 62.3 m ( Bisa dijual sebagian / Split )

ada kebun Jati dan Rumah bekas  Potong Hewan  (Tahun 2000) disewakan setiap tahun menjelang Hari Raya Idul Qurban.

ada SUTT lahan terbuka, Zonasi tata ruang kota Zona R-2 perumahan. Sub Zona R2 Perumahan kepadatan sedang.


Selling Poin :

- ada  saluran air jetPump

- Akses masuk 2 mobil 

- Strategis cuma 950 M ke Jl. Margacinta Bandung

- Dekat ke Borma toserba 3 KM

- 4 km ke SPBU ciwastra

- 700 M kelurahan Cijaura

- 1.8 KM tol Buahbatu

Sertifikat : SHM dengan 2 Nama

Harga : Rp. 2.600.000 / m2

Harga Total Rp. 35.539.400.000 ,- Nego

Unduh Materi Promosi
Unduh Semua Aset
Hubungi agen
Didin Jae
Didin Jae
6281******** didi***********************